Monday-Friday 8.00-17.00 (UTC +5:00)

Process Block-Boxes

Process Block-Boxes are designed to accommodate process control equipment, electrical equipment, monitoring and control cabinets, electronic control and secondary instrument boards, a computer work station for a process control operator, as well as production offices for personnel.



Specifications
 
The Process Block-Boxes is a heated facility provided with a power-supply system, ventilation, air-conditioning (if required), water-supply, sewerage and heating (electrical or hot-water) systems. The building exterior is made of corrugated steel sheets, while MDF boards and sandwich panels are used for the interior. The heat insulating material used is rock wool, the floor insulation is by means of cement bonded particle boards covered with linoleum, and the roofing is sheet metal.
 
The Process Block-Boxes are modular facilities made up of modules measuring 3х6х2.95m, 3х9х2.95m, 3х12х2.95m that can be joined together and fitted out with any specific equipment required by Customer and Designer.

They are fully customizable to accommodate your wishes with regard to dimensions, floor space, layout, interior finish, furniture and equipment. 
 
The Process Block-Boxes are manufactured in accordance with the technical regulations “On the Safety of Machinery and Equipment”. 
 
Ordering Information: 
Process Block-Box ББ 9000х3000х2950 as per TU 3661-034-56562997-2011
 
Technical Data 
Dimensions of the Process Block-Box
                                                          
Overall dimensionsin mm
Widthfrom 2 200 to 3 000
Length3 000, 4 000, 6 000, 9 000 and 12 000
Ceiling height2 200 and 2 475
Building height2 400, 2 950 and 3 750
Estimated weight 3 000 х 6 000, min, kg5 000
 
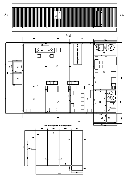
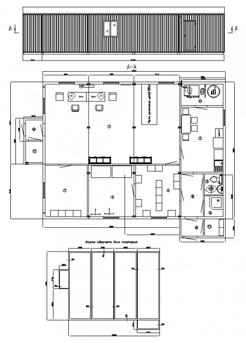
Process Block-Box  (Example)

                                                                                                                                                                                
Specification
ItemName
1Control room
2Dining room
3Drying for safety overalls
4Locker room
5WC
6Shower room
7Room for emergency fire-fighting equipment and for PPE
8Airlock door entry
9Lobby
10Process room lobby
11Process area
12Smoking lounge with ventilation system
13Sample storage room
14Vido monitoring console area


×
Please introduce yourself Specify your phone number so that we can contact you Specify your e-mail so that we can contact you
Additional information
Our Contacts
7072 Business Center, Al Shmookh Building UAQ Free Trade Zone, Umm Al Quwain, UAE