Monday-Friday 8.00-17.00 (UTC +5:00)

The Petroleum Gas Purification Plant


The Petroleum Gas Purification Plant (PGPP) is designed to treat associated petroleum gas released during oil preparation for use as fuel in oil heating furnaces, for power plants, boiler houses and other consumer needs.


Characteristics


Working environment
associated petroleum gas
Gas capacity, thousand nm3/h
15; 25; 50; 100
Content of drop liquid in gas, mg/dm3
at the entrance
- at the exit
up to 1000
up to 20
Design pressure, MPa
1,0; 1,6; 2,5
Operating environment temperature, 0Сfrom 0 to +80
Ambient temperature, 0С-60 to +50


Technical details

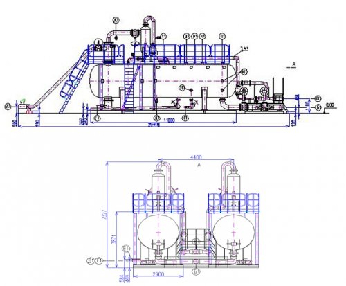
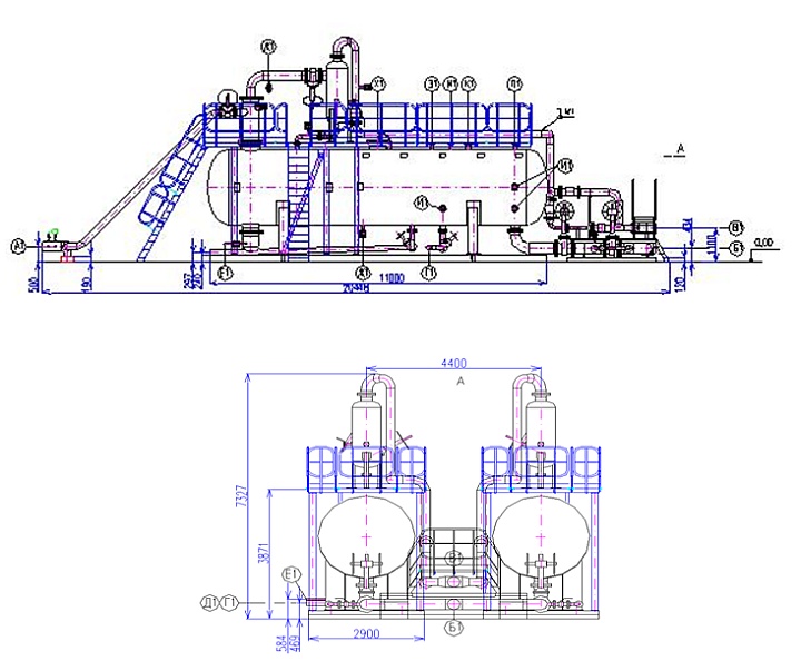
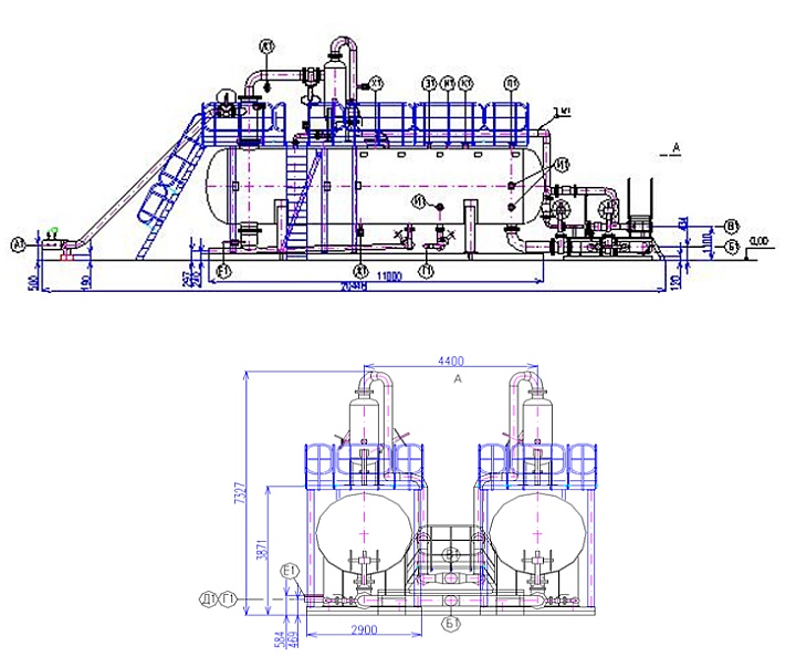
The PGPP block includes a gas separator block, with piping, with a set of shut-off and safety valves, automation and instrumentation. All equipment is placed in a heated block-box equipped with fire alarm systems, gas alarm systems, ventilation, lighting or is made in the form of an open block on a base frame.

The unit is delivered in 100% factory readiness.


Designation
Purpose
A1Gas inlet
B1Gas outlet
V1Condensate outlet
G1Upper limit level
G2Lower limit level
D1Steaming
E1Condensate outlet
Z1Relief from a relief spring-loaded safety valve
I1-3Sampler
K1Pressure gauge
L1Thermometer
M1Pressure switch
N1Air vent
P1Inspection hatch


PGPP with a capacity of 15 thousand Nm3/h




×
Please introduce yourself Specify your phone number so that we can contact you Specify your e-mail so that we can contact you
Additional information
Our Contacts
7072 Business Center, Al Shmookh Building UAQ Free Trade Zone, Umm Al Quwain, UAE