Fire Extinguishing Pump Station
Fire extinguishing pump stations are designed to deliver water and firefighting foam solution to a fire-fighting system intended to protect oil and gas production facilities. The capacity and the configuration of the pump stations are defined by the project-specific requirements of particular oil production facilities. Manufacture of stations is carried out in accordance with the customer's technical requirements.
Specifications
Equipment Configuration
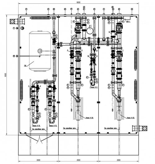
Fire extinguishing pump station comes complete with the following equipment:
• feedwater pumps 1Д 200-90;
• firewater circulation pumps 1К80-50-200;
• foam pumps ЦНС 105-98;
• pump to supply foam solution to foam tank НМШ-5-25-4/4б-1;
• foam dosing tanks for foam storage and dosage V=5 m3 (2 each);
• water line header and foam line header with isolation valves;
• pump leaks collection and drainage system;
• automatic control equipment and instrumentation package.
Fire extinguishing pump station is made up of room modules equipped with hoisting mechanisms, electric-panel or hot-water heating systems, lighting, ventilation, gas detectors and fire alarms. It can be housed in a block-box and comes in various design versions and configurations according to the customer requirements.
At customer's option the pump units can be further complemented with monitoring equipment designed to monitor control and alarm systems.
Fire extinguishing pump stations can also be built according already completed projects.
The unit is dismountable, pre-fabricated unit supplied as fully pre-assembled modules.
Listed below for illustrative purposes are the performance specifications of a fire extinguishing pump station with a capacity of 200 m3/h:
Technical data
Specifications
Fire extinguishing pump station 19000х9000х4360 mm
Capacity for water - 200 m3/h, capacity for foam solution - 105 m3

Nozzle Listing
3.1
Specifications
Equipment Configuration
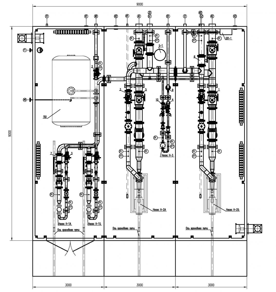
Fire extinguishing pump station comes complete with the following equipment:
• feedwater pumps 1Д 200-90;
• firewater circulation pumps 1К80-50-200;
• foam pumps ЦНС 105-98;
• pump to supply foam solution to foam tank НМШ-5-25-4/4б-1;
• foam dosing tanks for foam storage and dosage V=5 m3 (2 each);
• water line header and foam line header with isolation valves;
• pump leaks collection and drainage system;
• automatic control equipment and instrumentation package.
Fire extinguishing pump station is made up of room modules equipped with hoisting mechanisms, electric-panel or hot-water heating systems, lighting, ventilation, gas detectors and fire alarms. It can be housed in a block-box and comes in various design versions and configurations according to the customer requirements.
At customer's option the pump units can be further complemented with monitoring equipment designed to monitor control and alarm systems.
Fire extinguishing pump stations can also be built according already completed projects.
The unit is dismountable, pre-fabricated unit supplied as fully pre-assembled modules.
Listed below for illustrative purposes are the performance specifications of a fire extinguishing pump station with a capacity of 200 m3/h:
Technical data
Specifications
| Water capacity, m3/h | 200 |
| Foam solution production, m3/h 105 | |
| Foam storage, m3 10 (5 m3х2) | |
| Type of feedwater pump: 1Д 200-90 | |
| - quantity | 2 |
| - operating | 1 |
| - standby | 1 |
| Type of firewater circulation pump: 1К80-50-200 | |
| - quantity | 2 |
| - operating | 1 |
| - standby | 1 |
| Type of foam pump: НМШ-5-25-4/4б-1 | |
| - quantity | 1 |
| Air temperature inside module, оС, above + 5 | |
| Building explosion and fire hazard class as per НПБ 105-03 Д (Fire Code) | |
| Fire resistance rating as per building regulations 21-01-97 II | |
| Ambient temperature, 0С | from -60 to +50 |
Fire extinguishing pump station 19000х9000х4360 mm
Capacity for water - 200 m3/h, capacity for foam solution - 105 m3
Nozzle Listing
3.1
Our Contacts
7072 Business Center, Al Shmookh Building UAQ Free Trade Zone, Umm Al Quwain, UAE
