Water pumping stations
The pumping station for pumping water can be used as an internal pumping station and a booster pumping station for pumping treated water at the Block-type cluster pumping station in the field gathering system and at oil and water treatment plants.

Characteristics
Part of the equipment
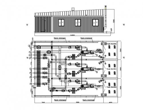
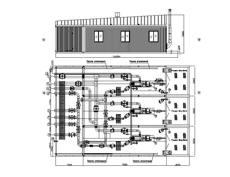
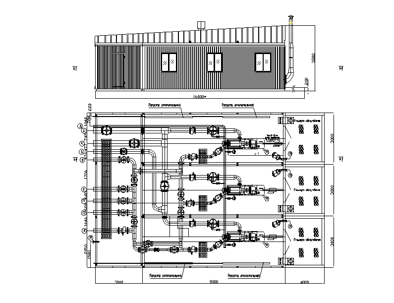
Block pumping station for water pumping can be placed in a block box and on an open frame, manufactured in various designs and configurations depending on the requirements of the Customer.
The pumping station for pumping water is equipped with:
-pumping units for pumping water;
-filters, piping and cable piping, shut-off and control valves;
-means of automation and instrumentation;
-lifting mechanisms;
-withdrawable devices;
-service platforms;
-placed in a heated block-box equipped with electric or water heating, ventilation, lighting, alarm and drainage systems.
It is additionally equipped with control and alarm control devices.The room of the pumping station for pumping water is made of modules with dimensions of 3x6x2.95m, 3x9x2.95m, 3x12x2.95m, which can be connected and completed in any way.
Designation
An example of a record when ordering products:
Pumping station for pumping water PW-25-HL1, where:
25 – productivity, m3/h;
HL1 - climatic version (-600C + 400C).
Technical details
| Working environment | reservoir, commercial, fresh water |
| Water capacity of one pump unit, m3/h | 13*300 |
| Pump head, m, no more | 70*441 |
| Ambient temperature, С0 | -60/+50 |
| Air temperature inside the block, °С, not lower | + 5 |
| Explosion and fire hazard category of the building according to NPB 105-03 | D |
| Degree of fire resistance according to SNiP 21-01-97 | III |
Parameters and technical characteristics of pumping stations
with two pump units
with two pump units
| Parameters | Dimensions | |||||
| PW - 15 | PW - 40 | PW - 60 | PW - 100 | PW - 180 | PW-300 | |
| Productivity, m3/h,max | 15 | 58 | 80 | 130 | 210 | 350 |
| Suction line pressure, MPa | 0,10 – 0,2 | 0,10 – 0,2 | 0,05 – 0,6 | 0,05 – 0,6 | 0,05 – 0,6 | 0,05 – 0,6 |
| Discharge pressure, MPa | 0,7 – 3,5 | 0,44 – 2,2 | 0,66 – 3,3 | 0,98 – 4,9 | 0,98 – 4,4 | 1,2 – 6,0 |
| Number of pumps, pcs. | 2 (1 working + 1 backup) | |||||
| Working environment | Water | |||||
| Working environment temperature, оС | +1 до +45 | |||||
| Block dimensions, m: - length, no more - width, no more | 6,0 3,0* | 6,0 3,0* | 6,0 6,0* | 6,0 6,0* | 9,0 6,0* | 12,0 9,0* |
| Life cycle, not less, years | 15 | |||||
Pumping station for pumping water with pumps at the option of the Customer ESP Water Pumps 105-245 (example)
Explication fittings
| Name | Purpose | Quantity,pcs | DN, mm |
| А1 | Water inlet | 1 | 200 |
| Б1 | Water inlet | 1 | 150 |
| В1 | Coolant inlet | 1 | 100 |
| Г1 | Coolant outlet | 1 | 100 |
| Д1 | Drainage from the pump room | 1 | 50 |
| Е1 | Drainage from the block floor | 1 | 50 |
| Ж1 | Power cable entry | 1 | 50 |
| И1 | Instrument cable entry | 1 | 20 |
Our Contacts
7072 Business Center, Al Shmookh Building UAQ Free Trade Zone, Umm Al Quwain, UAE
