Block compressor units
Block compressor units are designed to compress associated petroleum and natural gas to the required pressure, cool the gas and separate the liquid released during compression and cooling.

Characteristics
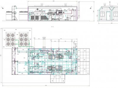
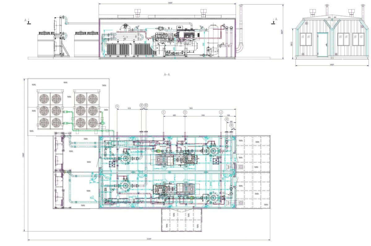
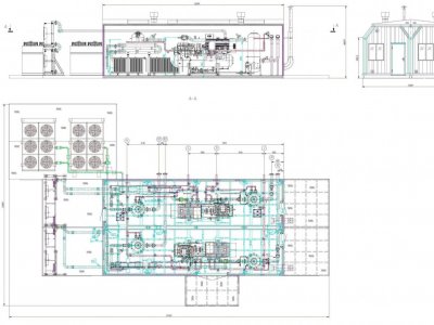
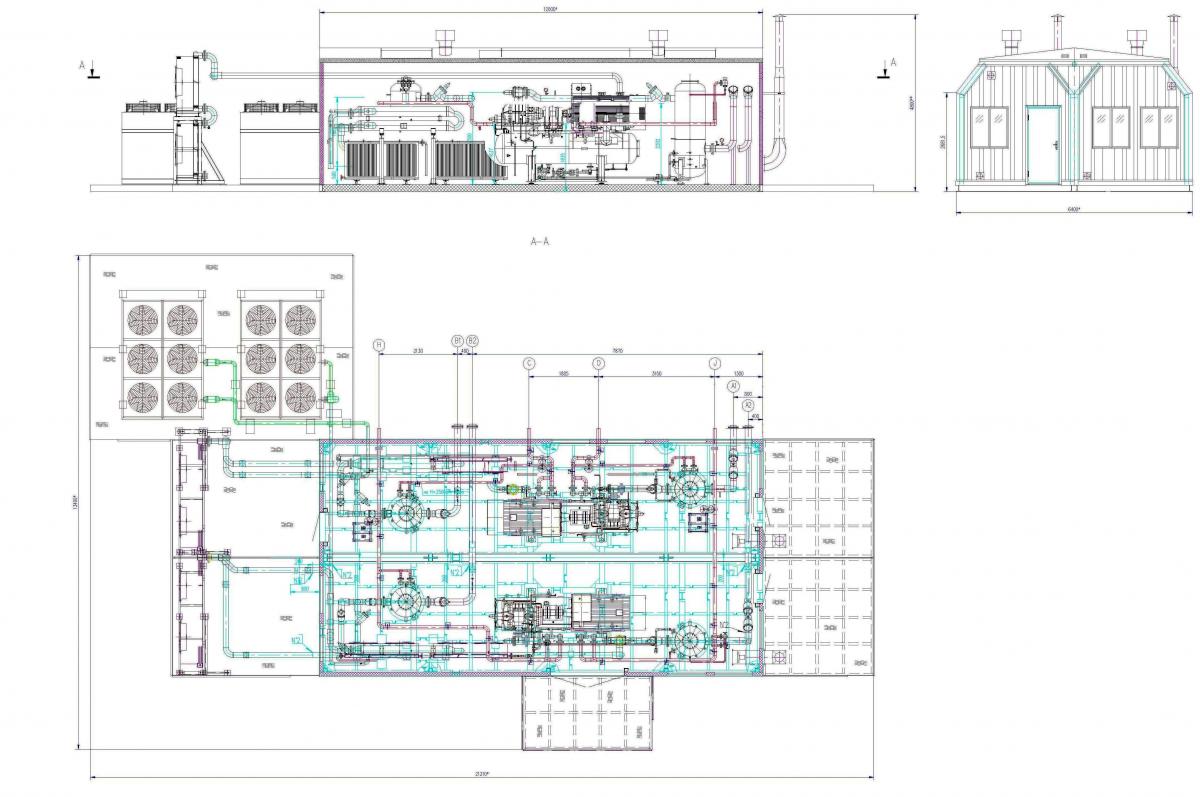
The block compressor unit is completed with compressor units of a Russian or foreign manufacturer (at the request of the customer), gas separators, filters, a gas and oil cooling system, a monitoring and control system, piping, shut-off valves, and instrumentation and control devices.
The compressor station can be placed in a shelter block and on an open frame; it is manufactured in various designs and configurations depending on the requirements of the Customer.
The compressor station can be placed in a shelter block and on an open frame; it is manufactured in various designs and configurations depending on the requirements of the Customer.
Shelter blocks are equipped with lifting mechanisms, electric or water heating systems, lighting, ventilation, gas control and fire alarm sensors.
If it is necessary to place two, three or more compressor units in the blocks, the blocks are docked into a single production building.
If it is necessary to place two, three or more compressor units in the blocks, the blocks are docked into a single production building.
Обозначение
An example of a record when ordering products:
Compressor station BKU-300-KhL1, where:
300 – productivity, thousand nm3/day;
ХЛ1 – climatic modification (-60 °С +40 °С)
Technical details
Our Contacts
7072 Business Center, Al Shmookh Building UAQ Free Trade Zone, Umm Al Quwain, UAE
