Buffer Produced Water Flash Drums
Buffer tanks-degassers are designed for degassing and post-treatment of formation water from mechanical impurities and oil products before pumping units. This equipment is a type of apparatus MOAGS-A.

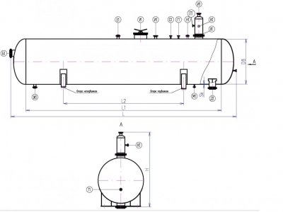
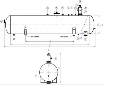
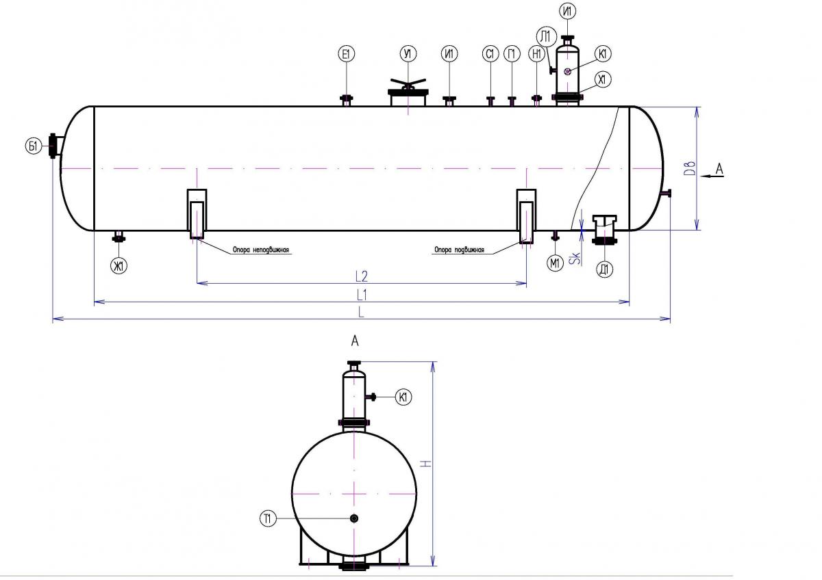
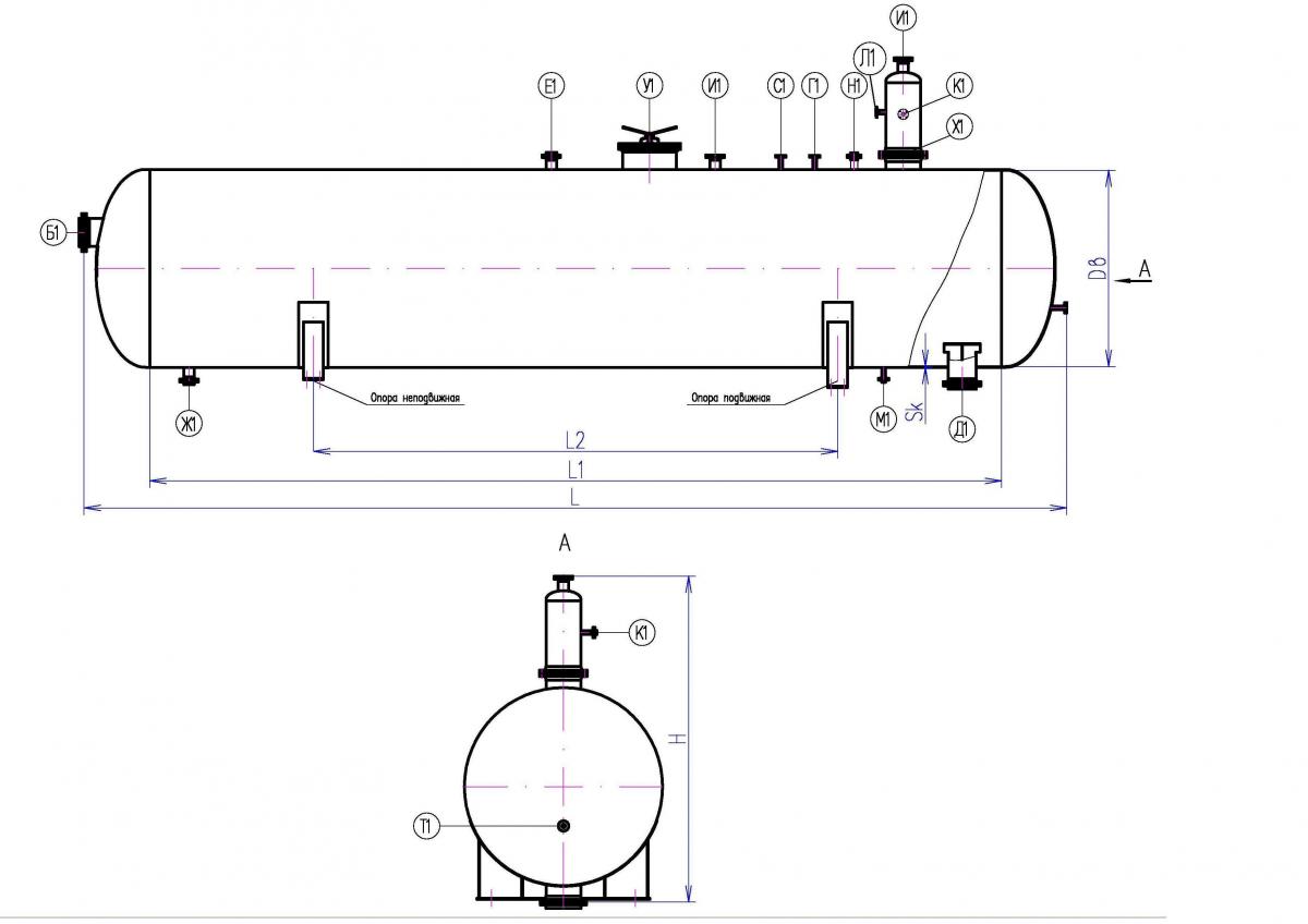
The formation water degassing buffer tank with an oil product recovery unit is supplied with the following configuration: a horizontal tank with a set of fittings, instrumentation, an internal coalescing device for water purification and a device for collecting trapped oil and draining it.
The dimensions and volume of the apparatus are determined depending on the required productivity, physical and chemical properties of formation water, operating mode and requirements for the quality of the final product.
Designation
Order designation example:
Formation water buffer tank-degasser based on MOAGS-A apparatus (BEV-25-1.0-U1) according to TU 3615-037-56562997-2012, where:
25 – tank volume, m3;
1.0 – design pressure, MPa;
U1 - climatic version.


Characteristics
Part of the equipment
The formation water degassing buffer tank with an oil product recovery unit is supplied with the following configuration: a horizontal tank with a set of fittings, instrumentation, an internal coalescing device for water purification and a device for collecting trapped oil and draining it.The dimensions and volume of the apparatus are determined depending on the required productivity, physical and chemical properties of formation water, operating mode and requirements for the quality of the final product.
Designation
Order designation example:
Formation water buffer tank-degasser based on MOAGS-A apparatus (BEV-25-1.0-U1) according to TU 3615-037-56562997-2012, where:
25 – tank volume, m3;
1.0 – design pressure, MPa;
U1 - climatic version.
| Specifications | |
| Working environment | formation water |
| Volume of devices, m3 | from 8 to 200 |
| Design pressure, MPa | 0,6; 1,0; 1,6; 2,5 |
| Liquid capacity, m3/day | up to 18 000 |
| Content at the inlet in formation water, mg/l | |
| - oil products | up to 100 |
| - механических примесей | up to 50 |
| Outlet content in formation water, mg/l | |
| - oil products | 20 - 40 |
| - mechanical impurities | 20 - 40 |
| Volume content of gas, l/m3 | no more than 30 |
| Ambient temperature, 0C | -60 to +50 |
Technical details
| Explication fittings | ||||||
| Designation | Purpose | Apparatus volume, m3 | ||||
| 25 | 50 | 100 | 150 | 200 | ||
| Conditional passage, mm | ||||||
| B1 | Product entry | 200 | 300 | 400 | 500 | 500 |
| D1 | Product yield | 200 | 200 | 400 | 400 | 400 |
| N1 | Gas outlet to the torch (candle) | 100 | 100 | 100 | 150 | 150 |
| E1 | For SSV | 150 | ||||
| G1 | For level switch | 50 | ||||
| J1 | Drainage | 150 | ||||
| I1 | For water level gauge | 150 | ||||
| K1 | Output of captured oil, gas | 50 | ||||
| M1,2 | For steaming | 50 | ||||
| S1 | For pressure sensor | 50 | ||||
| T1 | For level switch | 50 | ||||
| U1 | Manhole hatch | 600 | ||||
| H1 | Exit to the cap | 500 | ||||
| Z1 | For purge | 50 | ||||
| L1 | For sampler (air vent) | 50 | ||||
| P1 | For pressure gauge | 50 | ||||
Parameters and dimensions of devices
| cipher machine | volume, m3 | Design pressure, MPa | H, mm | Dv, mm | Sk, mm | L, mm | L1, mm | L2, mm | Масса, kg | Productivity, m3/day |
| by liquid | ||||||||||
| BЕV-25-0,6 | 25 | 0,6 | 4220 | 2000 | 8 | 10104 | 8500 | 5000 | 7291 | 2000 |
| BЕV-25-1,0 | 1,0 | 10 | 8554 | |||||||
| BЕV-25-1,6 | 1,6 | 12 | 9546 | |||||||
| BЕV-25-2,5 | 2,5 | 18 | 12746 | |||||||
| BЕV-50-0,6 | 50 | 0,6 | 4875 | 2400 | 8 | 12893 | 11000 | 6000 | 10660 | 3600 |
| BЕV-50-1,0 | 1,0 | 10 | 12543 | |||||||
| BЕV-50-1,6 | 1,6 | 14 | 15448 | |||||||
| BЕV-50-2,5 | 2,5 | 20 | 21063 | |||||||
| BЕV-100-0,6 | 100 | 0,6 | 5050 | 3000 | 10 | 14980 | 13000 | 8000 | 19832 | 7000 |
| BЕV-100-1,0 | 1,0 | 12 | 22297 | |||||||
| BЕV-100-1,6 | 1,6 | 18 | 28487 | |||||||
| BЕV-100-2,5 | 2,5 | 25 | 38097 | |||||||
| BЕV-150-0,6 | 150 | 0,6 | 5568 | 3400 | 12 | 17826 | 15300 | 9000 | 24591 | 12000 |
| BЕV-150-1,0 | 1,0 | 14 | 31550 | |||||||
| BЕV-150-1,6 | 1,6 | 20 | 41090 | |||||||
| BЕV-150-2,5 | 2,5 | 28 | 56800 | |||||||
| BЕV-200-1,0 | 200 | 1,0 | 5568 | 3400 | 12 | 23120 | 19800 | 13000 | 27515 | 18000 |
| BЕV-200-1,6 | 1,6 | 16 | 34407 |
Our Contacts
7072 Business Center, Al Shmookh Building UAQ Free Trade Zone, Umm Al Quwain, UAE
